Diagramas unifilares para empresas: diseño, seguridad y operación eficiente
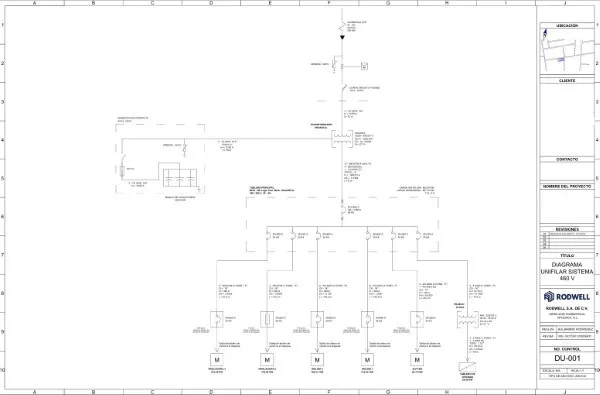
Los diagramas unifilares son representaciones gráficas simplificadas de un sistema eléctrico que muestran la distribución de la energía y la interconexión de sus componentes. En MTY Breaker ofrecemos un servicio especializado en diagramas unifilares para industrias, comercios, hospitales, corporativos y cualquier empresa que dependa de un sistema eléctrico confiable y seguro. Contar con diagramas precisos permite planificar, operar y mantener instalaciones eléctricas de manera eficiente, reduciendo riesgos y optimizando la inversión en infraestructura. Estos diagramas son esenciales para la seguridad eléctrica, la prevención de fallas y la correcta operación de los equipos.
👉 Solicita hoy mismo una evaluación de tu sistema eléctrico
¿Cómo elaboramos un diagrama unifilar?
Nuestro proceso comienza con un levantamiento técnico, donde evaluamos tableros, transformadores, protecciones, líneas de distribución y cargas críticas. Cada componente se documenta para garantizar que el diagrama refleje la realidad de la instalación. Posteriormente, nuestros ingenieros elaboran el diagrama digital, indicando las conexiones, protecciones, interruptores, fusibles y otros elementos clave de manera clara y estandarizada. Este diagrama no solo sirve como referencia, sino que también facilita el mantenimiento preventivo y correctivo de toda la instalación.
Durante esta etapa, también identificamos oportunidades de mejora y posibles actualizaciones de equipos, los cuales se pueden adquirir directamente desde nuestra tienda en línea, explorando la sección Shop de MTY Breaker, integrando así servicio y suministro en un solo flujo.
👉 Cotiza tu diagrama unifilar y optimiza la seguridad y operación de tu empresa
Beneficios de los diagramas unifilares
Contar con un diagrama unifilar profesional ofrece ventajas significativas:
✔ Seguridad: identifica claramente circuitos y protecciones, evitando riesgos eléctricos.
✔ Mantenimiento eficiente: facilita el diagnóstico de fallas y el reemplazo de componentes.
✔ Planeación de expansiones: permite agregar cargas o modificar sistemas sin afectar la operación.
✔ Cumplimiento normativo: garantiza que la instalación cumpla con estándares y regulaciones vigentes.
✔ Documentación profesional: facilita auditorías y mantenimiento a largo plazo.
✔ Capacitación del personal: permite que ingenieros y operadores comprendan la instalación y actúen de manera segura ante cualquier eventualidad.
¿Quién puede beneficiarse de nuestro servicio?
Nuestro servicio está dirigido a empresas que requieren diagramas unifilares confiables y precisos:
1
Parques industriales y manufactureros
2
Hospitales y clínicas
3
Centros comerciales y corporativos
4
Hoteles y restaurantes
5
Centros logísticos y almacenes
6
Constructoras y proyectos inmobiliarios
Cada empresa recibe un diagrama personalizado según sus instalaciones y necesidades operativas. Además, los diagramas sirven como herramienta de referencia diaria, apoyando decisiones de operación y prevención de fallas.
👉 Conoce cómo podemos mejorar la gestión de tu sistema eléctrico
Integración con otros servicios

En MTY Breaker los diagramas unifilares se integran con otros servicios eléctricos como mantenimiento de subestaciones, tableros y centros de control de motores, permitiendo una gestión integral del sistema. Esto asegura que cada instalación funcione de manera segura, eficiente y confiable. También ofrecemos asesoría para la adquisición de equipos eléctricos disponibles en nuestra tienda en línea, garantizando que cada proyecto esté respaldado con materiales de calidad.
Garantiza la seguridad y eficiencia de tu instalación eléctrica con diagramas unifilares profesionales en MTY Breaker.
Contáctanos hoy y recibe asesoría experta para tu empresa
Preguntas Frecuentes
Un diagrama unifilar es una representación gráfica simplificada de un sistema eléctrico que muestra cómo se distribuye la energía y cómo se interconectan sus componentes. Sirve para planificar, operar y mantener instalaciones eléctricas de manera segura y eficiente.
Se realiza un levantamiento técnico de la instalación, incluyendo tableros, transformadores, protecciones y líneas de distribución. Luego se dibuja el diagrama digital con todos los componentes eléctricos, protecciones y conexiones, asegurando que sea claro y conforme a normas vigentes.
Facilitan la operación segura del sistema eléctrico, permiten un mantenimiento más eficiente, ayudan en la planificación de expansiones, aseguran cumplimiento normativo y sirven como herramienta de capacitación para operadores e ingenieros.
Los requieren industrias, hospitales, corporativos, centros comerciales, hoteles, almacenes y cualquier instalación que dependa de un suministro eléctrico confiable y seguro. Son especialmente útiles en instalaciones de media y baja tensión.